К 10

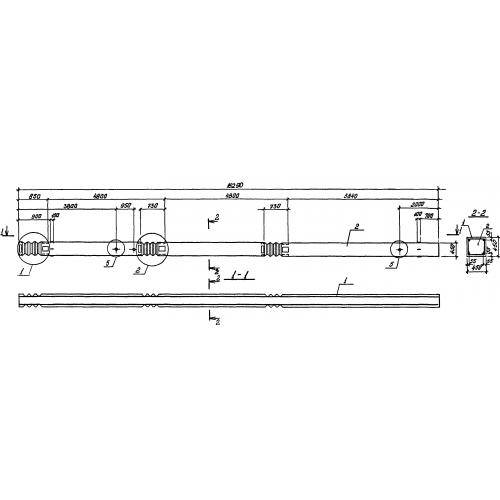
Чертеж изделия:
Характеристики изделия:
ПараметрЗначение
длина16290 мм
ширина450 мм
высота450 мм
масса8200 кг
нормативный документГОСТ 27108-86

К 10  Колонны ГОСТ 27108-86.