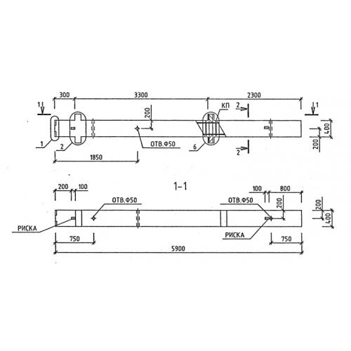
2КБ 33 колонны

Чертеж изделия:
Характеристики изделия:
ПараметрЗначение
длина5900 мм
ширина400 мм
высота400 мм
масса2360 кг
нормативный документСерия 1.020-1/87

2КБ 33 Колонны бесстыковые Серия 1.020-1/87.