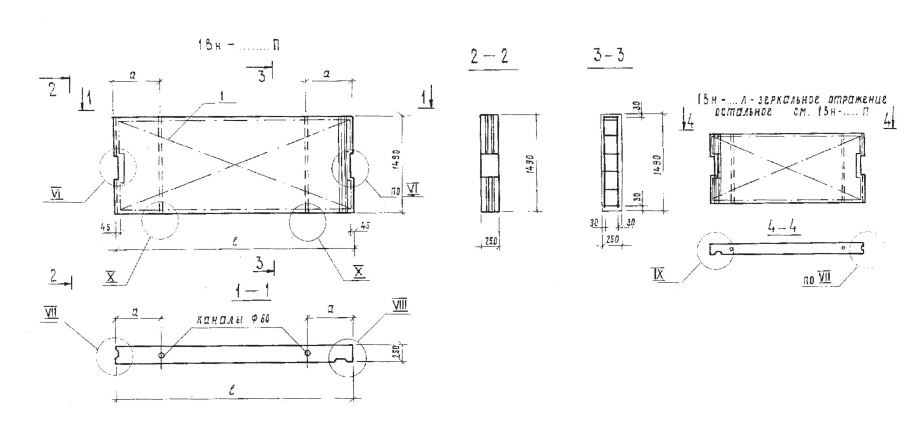
1Вн-37.15-2п(л)

Чертеж изделия:
Характеристики изделия:
ПараметрЗначение
длина3700 мм
ширина250 мм
высота1490 мм
масса1233 кг
нормативный документСерия 1.131-17

1Вн-37.15-2п   Нижние изделия для стеновых панелей группы 1ПСВ  (Серия 1.131-17).

1Вн-37.15-2л