1ПР 18
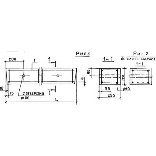
Характеристики изделия:
| Параметр | Значение |
|---|---|
| длина | 1810 мм |
| ширина | 250 мм |
| высота | 190 мм |
| вес | 214 кг |
| серия | 1.138-10 |
Цена:
Рассчитать стоимость1ПР 18 Перемычки брусковые по серии 1.138-10.
| Параметр | Значение |
|---|---|
| длина | 1810 мм |
| ширина | 250 мм |
| высота | 190 мм |
| вес | 214 кг |
| серия | 1.138-10 |
1ПР 18 Перемычки брусковые по серии 1.138-10.
2.jpg)