ПР 90.4.7
Характеристики изделия:
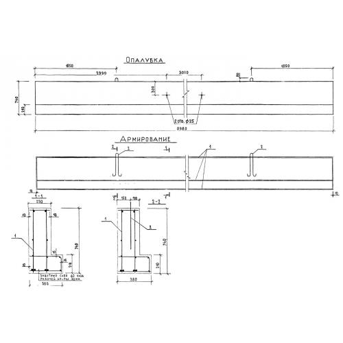
| Параметр | Значение |
|---|---|
| длина | 8980 мм |
| ширина | 380 мм |
| высота | 740 мм |
| масса | 4780 кг |
| нормативный документ | Серия 1.225.1-3 |
Цена:
Рассчитать стоимостьПР 90.4.7 Прогоны Серия 1.225.1-3.
| Параметр | Значение |
|---|---|
| длина | 8980 мм |
| ширина | 380 мм |
| высота | 740 мм |
| масса | 4780 кг |
| нормативный документ | Серия 1.225.1-3 |
ПР 90.4.7 Прогоны Серия 1.225.1-3.
