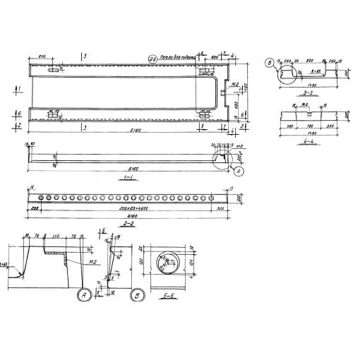
П 2
Характеристики изделия:
| Параметр | Значение |
|---|---|
| длина | 5160 мм |
| ширина | 1490 мм |
| высота | 220 мм |
| вес | 2200 кг |
| серия | 1.440-1 |
Цена:
Рассчитать стоимостьП 2 Плиты ребристые по серии 1.440-1.
| Параметр | Значение |
|---|---|
| длина | 5160 мм |
| ширина | 1490 мм |
| высота | 220 мм |
| вес | 2200 кг |
| серия | 1.440-1 |
П 2 Плиты ребристые по серии 1.440-1.
