ПБ 1

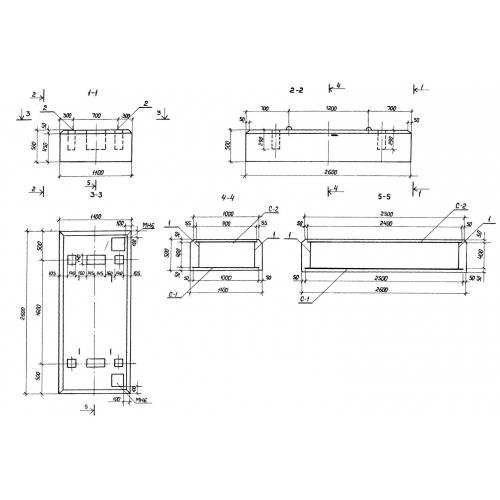
Чертеж изделия:
Характеристики изделия:
ПараметрЗначение
длина2600 мм
ширина1100 мм
высота500 мм
масса3580 кг
нормативный документСерия 3.014.1-2

ПБ 1  Блоки Серия 3.014.1-2.