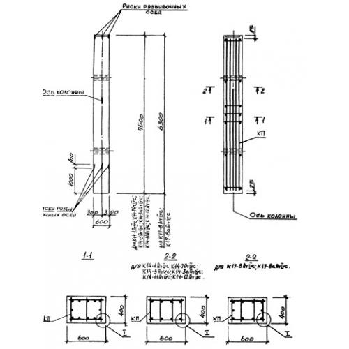
К 12

Чертеж изделия:
Характеристики изделия:
ПараметрЗначение
длина6300 мм
ширина600 мм
высота400 мм
масса3800 кг
нормативный документСерия 3.015-3/92

К 12  Колонны Серия 3.015-3/92.