С 12-35
Характеристики изделия:
| Параметр | Значение |
|---|---|
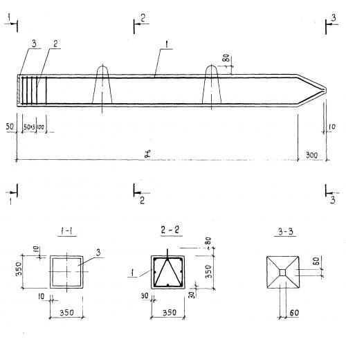
| длина | 12300 мм |
| ширина | 350 мм |
| высота | 350 мм |
| вес | 3730 кг |
| серия | 3.015-5/86 |
Цена:
Рассчитать стоимостьС 12-35 Сваи прямоугольного сечения по серии 3.015-5/86.
| Параметр | Значение |
|---|---|
| длина | 12300 мм |
| ширина | 350 мм |
| высота | 350 мм |
| вес | 3730 кг |
| серия | 3.015-5/86 |
С 12-35 Сваи прямоугольного сечения по серии 3.015-5/86.
