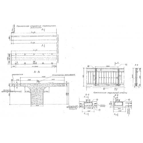
Блок №18

Чертеж изделия:
Характеристики изделия:
ПараметрЗначение
длина18000 мм
ширина1450 мм
высота700 мм
вес18100 кг
серия3.501-96

Блок №18 Блоки пролетных строений по серии 3.501-96.