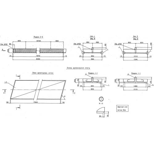
ПК 800.124.20 Плиты переходные косые
Характеристики изделия:
| Параметр | Значение |
|---|---|
| длина | 8000 мм |
| ширина | 1240 мм |
| высота | 200 мм |
| вес | 4900 кг |
| нормативный документ | Серия 3.503.1-96 |
Цена:
Рассчитать стоимостьПК 800.124.20 Плиты переходные косые по Серии 3.503.1-96.
