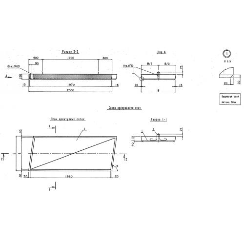
ПТК 200.75.15 Плиты тротуарные косые
Характеристики изделия:
| Параметр | Значение |
|---|---|
| длина | 2000 мм |
| ширина | 750 мм |
| высота | 150 мм |
| вес | 550 кг |
| нормативный документ | Серия 3.503.1-96 |
Цена:
Рассчитать стоимостьПТК 200.75.15 Плиты тротуарные косые по Серии 3.503.1-96.
