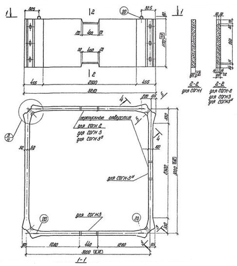
СОГН 3
Характеристики изделия:
| Параметр | Значение |
|---|---|
| Длина | 3210 мм |
| Ширина | 3210 мм |
| Высота | 1170 мм |
| Масса | 3720 кг |
| Нормативный документ | Серия 3.702-1 |
Цена:
Рассчитать стоимостьПредварительно напряженные изделия для стен силосов размером 3х3 по Серии 3.702-1.
СОГН 3 - стеновые объёмные блоки.