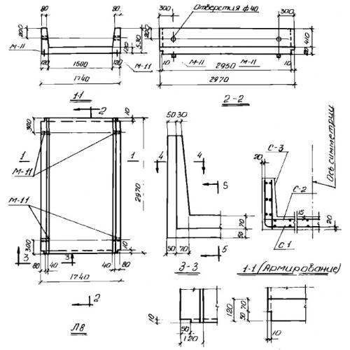
Л 8 лотки
Характеристики изделия:
| Параметр | Значение |
|---|---|
| длина | 2970 мм |
| ширина | 1740 мм |
| высота | 530 мм |
| масса | 2200 кг |
| нормативный документ | Серия ИС 01-04 |
Цена:
Рассчитать стоимостьЛ 8 Железобетонные лотки по Серии ИС 01-04.
| Параметр | Значение |
|---|---|
| длина | 2970 мм |
| ширина | 1740 мм |
| высота | 530 мм |
| масса | 2200 кг |
| нормативный документ | Серия ИС 01-04 |
Л 8 Железобетонные лотки по Серии ИС 01-04.
